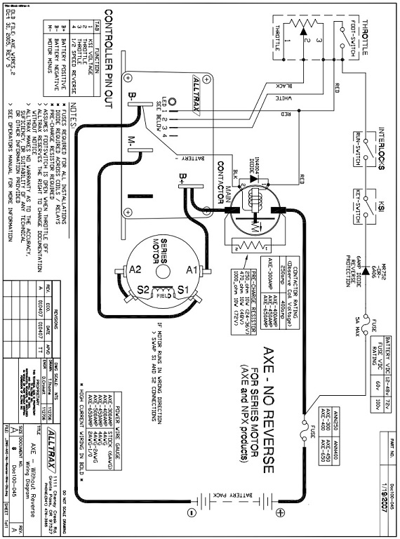
Elsystem.
Det är väldigt hög ström i en elbil så tänk på att säkra av systemet, gärna på flera ställen. Tex. om batterierna är placerade både fram och bak i bilen säkra då av på båda ställen. Var noga med att välja tillräcklig kabelarea se länk http://24volt.eu/kalkyl_kabelarea.php
http://24volt.eu/kalkyl_ohmslag.php
Montera alltid en huvudbrytare i kretsen, tänk också på att släcka gnistor i dina kontaktorer detta kan göras med effektmotstånd, likaså är det viktigt att sätta en diod på +polen till spolen på kontaktorn.

